FUNKCJONALNA
PRZESTRZEŃ,
która działa na co dzień
Funkcjonalność decyduje o wygodzie mieszkania każdego dnia. Chodzi o to, by wnętrze ułatwiało życie – dawało swobodę, porządek i elastyczność. Gdy przestrzeń jest dobrze przemyślana, codzienne czynności stają się prostsze, a każdy metr naprawdę pracuje na swoją korzyść. Funkcjonalność to dla nas podstawowa wartość. To od niej zaczynamy pracę nad każdym projektem.
Funkcjonalne wnętrze to takie, które:
Przykładowe rozwiązania stosowane w naszych realizacjach

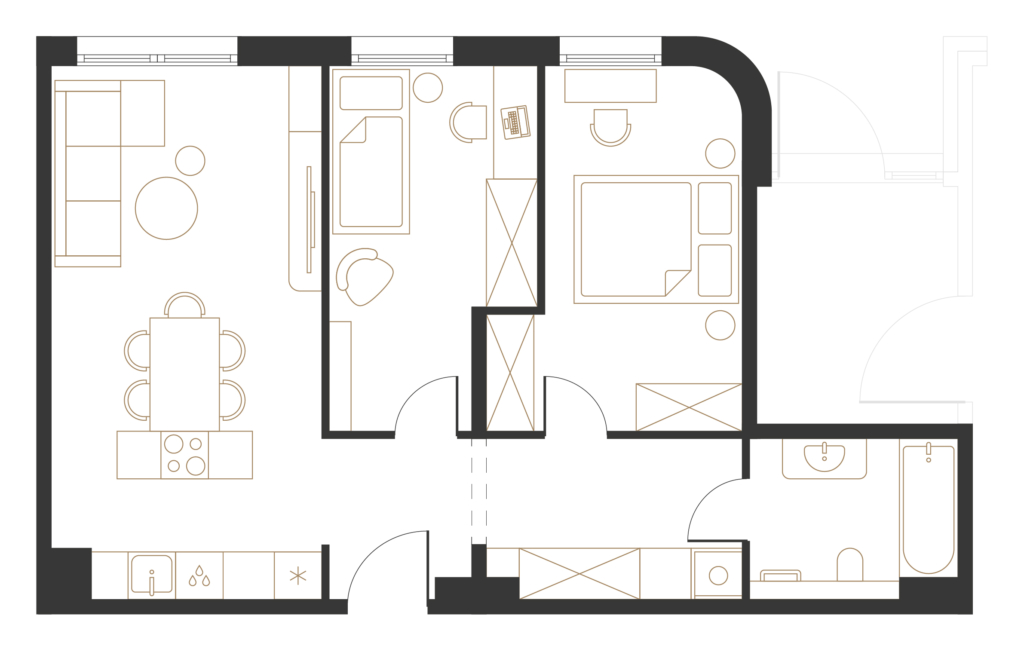
Jedna przestrzeń – wiele możliwości
Już na etapie projektu myślimy o elastyczności. Ustawienie okien, rozmieszczenie stref i ścian planujemy tak, by mieszkańcy mogli swobodnie aranżować wnętrza. Bo dobre wnętrze nie ogranicza – ono inspiruje.

Światło i funkcjonalność we wnętrzach – okna w naszych projektach
Okna to dla nas bardzo ważny element wnętrza. Planujemy je tak, by można było wydzielić np. osobną kuchnię lub gabinet. Przeszklenia w salonie zwykle sięgają od podłogi prawie do sufitu, a znajdująca się obok wyjścia na balkon szeroka witryna zapewnia dużo światła. Brak grzejników pod oknami w sypialniach daje większą swobodę aranżacyjną.

Korytarz – bez marnowania m2
Nie lubimy marnować przestrzeni w korytarzach. Dlatego projektujemy je tak, by jak najwięcej metrów znalazło się w pokojach, a komunikacja nie zabierała cennej powierzchni. W strefie wejścia przewidujemy zawsze miejsce na szafę, a dłuższe korytarze zamieniamy w rodzinne strefy do przechowywania.

Łazienka – wygodne rozwiązania
Planujemy układ łazienki tak, by codzienne korzystanie było wygodne. Pralka zwykle stoi obok umywalki – łatwiej ją zabudować i zyskujemy blat. Można wybrać prysznic lub wannę, a dodatkowe miejsce na przechowywanie ułatwia utrzymanie porządku. Dla komfortu sedes nie stoi naprzeciwko drzwi.

Sypialnie – wygodne i elastyczne
W każdej sypialni ważne są trzy rzeczy: łóżko, duża szafa i przestrzeń, którą można urządzić po swojemu. Dlatego projektujemy je tak, by dawały swobodę ustawienia mebli i mogły pełnić różne role – od miejsca do spania, przez przestrzeń dla dziecka, po gabinet do pracy.

Kuchnia – serce domu
W naszych kuchniach liczy się wygoda pracy. Dbamy o prawidłowy układ trójkąta roboczego: lodówka – zlew – kuchenka oraz o praktyczne miejsce do przechowywania. Kuchnia powinna też dawać swobodę aranżacji – w jednej linii, w L, w U, a nawet z wyspą. Jeśli ma okno, planujemy je tak, by pod nim zmieściły się szafki.

Dodatkowe przestrzenie – małe rzeczy, duży efekt
Każdy wolny metr może ułatwiać codzienne życie, dlatego tam, gdzie jest miejsce, planujemy spiżarnię, garderobę lub pralnię. Dzięki nim łatwiej utrzymać porządek i mieć wszystko pod ręką każdego dnia.
Poznaj przykłady funcjonalnych rozwiązań
Funkcjonalny dom









Funkcjonalne mieszkanie







